ECAD: Training in the virtual classroom proves its worth
EDAG Production Solutions is purposefully expanding its spectrum of services into demanding industrial production sectors. The full-service provider for production engineering is using EPLAN training courses to help strengthen its automation technology business and train its mechanical engineers. Because of the pandemic, the planned in-person training at the Eplan Training Academy has been replaced by online courses. All those involved are keen for more.
The transformation currently underway in the automobile industry is naturally influencing the entire value chain for automotive engineering – including engineering service providers that plan and develop turnkey production plants for automobile manufacturers and suppliers.
Project: Skills for project engineers
One such company is EDAG Production Solutions (EDAG PS), headquartered in Fulda, Germany, and with more than 1,300 employees worldwide. This subsidiary of the EDAG Group was originally focused on the automobile industry. Since companies in other branches were also demanding highly automated production solutions at the highest quality standards for their value chains, EDAG PS decided early on to offer its services to other sectors, including medical technology, food and beverage, logistics distribution, optics and optoelectronics, and machine building generally. The company has been systematically expanding into these target industries, which also means that they need more electrical engineering designers and fewer specialists for mechanical engineering (e.g. for planning car body construction plants).
The consequences are obvious. EDAG PS Senior Expert Oliver Dierolf explains: “We are training mechanical design engineers from multiple locations to become electrical design engineers. The demand for our services in this field is growing strongly. This allows us to offer our employees interesting perspectives while we simultaneously create an important prerequisite for broadening our international customer base.”
Basic idea: Courses at the Eplan Training Academy
As the first step, EDAG PS developed a multi-stage training programme that imparts comprehensive e-technology knowledge: from the foundations of electrotechnology, to hardware planning and PLC programming, to robotics. Dierolf: “It was important for us to take a diverse approach and not just train the youngest among us.” That’s why participants of different ages and from five company locations were to take part in the programme, which was designed to last five months. It almost goes without saying that Eplan Electric P8 is part of the training programme. After all, both EDAG PS and many of its clients work with Eplan Platform.
Originally, the plan was for the employees to take the courses at the Eplan Training Academy, which has numerous locations across Germany and internationally. Eplan offers a comprehensive training programme here: from basic to advanced training, to courses in methodology and automation. The training programme can be completed with an exam to become an Eplan Certified Engineer.
Onlineinstead of “Live”: Can it work?
That was the idea. Then came corona, just before the in-person courses were supposed to start. EDAG PS was faced with the question: Can this demanding training concept be realised via online courses without any loss of quality? Eplan Training Academy Director Harald Weiß was able to persuade the people responsible at EDAG PS and at the same time offer the Eplan Training Quality Guarantee as the “fallback” position: “If a customer isn’t satisfied, the online training can be repeated in person – free of charge.”
Teamwork was key in the preparation for the courses: EDAG PS provided computers and monitors for 22 participants, while the Eplan Training Academy provided the training environment, including all the necessary software licences and digital training materials.
ECAD Training in the Virtual Classroom
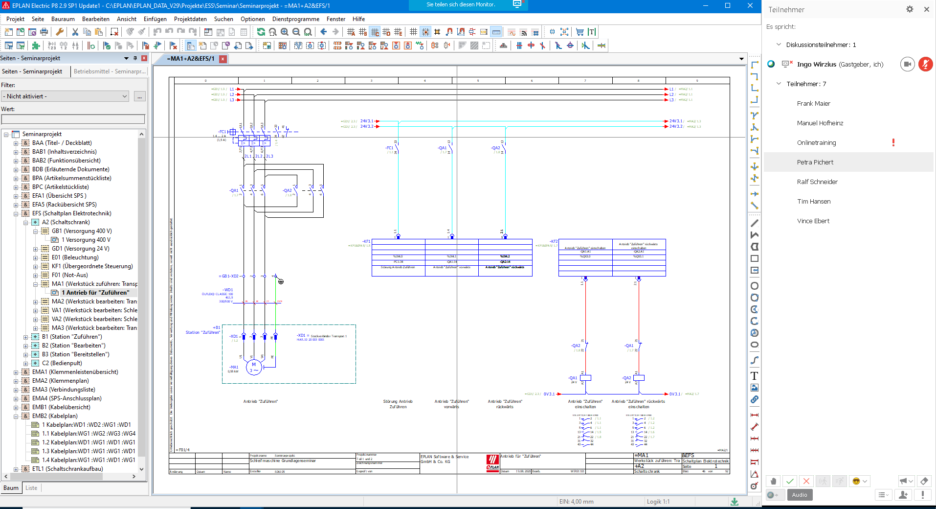
The Eplan Academy concept for online training courses is based on a combination of Citrix and Webex as the work platform. Weiß: “Citrix depicts the complete training environment, while the classroom is realised with Webex, which enables communication among all training participants. We reproduce the entire contents of an in-person training 1:1 in the online training.” As part of the training concept, each participant is given a specific design task, which is divided into a knowledge transfer phase and a practical implementation phase. In the virtual classroom, participants can ask the trainer questions or communicate with others via a chat function. The timing of working phases and breaks was also adapted to the online requirements.
- 1
- 2
- 3
The future of training: A mix of online and in-person events
Today, the higher-ups at EDAG PS are convinced by the online training concept – even though it originally started as an emergency measure. Dierolf: “We received positive feedback about the course’s contents from the participants. And from the company’s point of view, the online training courses have big advantages. Participants don’t have to travel and thus aren’t taking any risks during the pandemic, and we save on costs as well.” In the meantime, twenty EDAG PS employees have completed Eplan online training courses, and more will follow in the near future.
EDAG PS isn’t the only company with a very high level of acceptance for online training. The positive feedback from course participants and the customers’ desire for both in-person and online options, point the way forward: the Eplan Training Academy now offers its entire portfolio of courses online as well – even worldwide.
Author: Gerald Scheffels, freelance specialist journalist, Wuppertal, Germany